Mārupes novada pašvaldības (turpmāk – Pašvaldība) dome 2025. gada 26. novembrī ir pieņēmusi lēmumu Nr. 54 (prot. Nr. 12) “Par nekustamā īpašuma “Kamoliņi” (kadastra Nr.8088 005 0155) zemes vienības ar adresi “Medulejas”, Spuņciemā, Salas pagastā, Mārupes novadā (kadastra apzīmējums 8088 005 0155) detālplānojuma projekta nodošanu publiskajai apspriešanai un atzinumu saņemšanai”.

Plānotais publiskās apspriešanas termiņš: no 15.12.2025. līdz 19.01.2026. (vai 20 darbadienas, skaitot no nākamās darbdienas pēc attiecīgā plānošanas dokumenta publicēšanas sistēmā, ja apspriešana nav bijusi publicēta līdz norādītajam sākuma datumam).
Publiskās apspriešanas sanāksme: 22.12.2025. plkst. 17.00 Pašvaldības administrācijas ēkā Mārupē, Daugavas ielā 29, Attīstības un plānošanas pārvaldes sanāksmju zālē 1. stāvā. Papildus tiek nodrošināta iespēja piedalīties sanāksmē attālināti MS Teams platformā.
Saite uz sanāksmi: https://ej.uz/kamolini22
Lēmums un detālplānojuma redakcija pieejama:
- ģeoportālā www.geolatvija.lv, sadaļā “Teritorijas izmantošana” - saite uz dokumentu;
- Pašvaldības tīmekļa vietnes www.marupe.lv sadaļā “Pašvaldība” – “Attīstība un plānošana” – “Detālplānojumi”;
- informatīvais stends izvietots publiskajā ārtelpā detālplānojuma teritorijā - nekustamajā īpašumā “Kamoliņi” Salas pagasta Spuņciemā.
Rakstiskus ierosinājumus var iesniegt līdz 19.01.2026.:
- pa pastu: Daugavas iela 29, Mārupe, Mārupes novads, LV-2167;
- ar elektronisko parakstu sūtot uz e-pasta adresi: marupe@marupe.lv;
- pastkastē pie Pašvaldības administrācijas ēkām: Mārupē, Daugavas ielā 29, un Piņķos, Centra ielā 4;
- reģistrējoties ģeoportālā www.geolatvija.lv, ievadot priekšlikumu sadaļā “Plānošanas dokumenti” (ievadot meklētāja logā plānošanas dokumenta nosaukumu un izvēloties “Iesniegt priekšlikumu”).
Iesniegumā fiziskām personām jānorāda vārds, uzvārds un adrese, juridiskām personām – nosaukums, reģistrācijas numurs, adrese.
Kontaktinformācija: Pašvaldības Attīstības un plānošanas pārvaldes teritorijas plānotāja Anda Sprūde (tālruņa numurs: 27269759, e-pasta adrese: anda.sprude@marupe.lv) speciālistu konsultāciju laikā – pirmdienās un ceturtdienās no plkst. 9.00 līdz 18.00.
Detālplānojuma izstrādes pamatojums un īss risinājuma apraksts
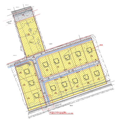
Detālplānojuma izstrādes mērķis - veikt īpašuma sadali savrupmāju būvniecībai, veidot vienotu ielu tīklu detālplānojuma teritorijā un tai piegulošajos īpašumos, noteikt ielas sarkanās līnijas, detalizēt teritorijas izmantošanas un apbūves noteikumus un prasības labiekārtojumam, kā arī izstrādāt būvprojektu minimālā sastāvā pieslēguma izveidei pie Pašvaldības ceļa pāri meliorācijas grāvim.
Detālplānojuma risinājums – paredz veidot 18 zemes vienības: 14 z.v. savrupmāju būvniecībai un 4 z.v. Transporta infrastruktūras teritorija (TR).
Piekļūšana Detālplānojuma teritorijai nodrošināta no pašvaldības autoceļa Dambja ceļš.
Attīstības un plānošanas pārvalde
