Izskatot apbūves tiesīgā SIA “CSE COE” reģ. Nr.40103995402 īpašnieks (…), iesniegtos dokumentus būvniecības iecerei kafejnīcas un plašizklaides ēkas būvniecībai nekustamā īpašumā Pededzes iela 1A (kadastra Nr. 8076-007-2949; kadastra apzīmējuma Nr. 8076-007-3003), Mārupē, Mārupes novadā, Mārupes novada būvvalde lēmusi uzsākt ierosināto kafejnīcas un plašizklaides ēkas jaunbūves būvniecības ieceres publisko apspriešanu laika posmā no 15.06.2020. līdz 10.07.2020.
Aptaujas lapa par būvniecības ieceri
Būvniecības ieceres veids un adrese
Būvniecības iecere: divas vienstāvu jaunbūves: kafejnīca (paredzētais lietošanas veids ir 12110103) un plašizklaides ēka (paredzētais lietošanas veids ir 1261).
Objekta adrese: Pededzes iela 1A, kadastra numurs 8076 007 2949
Vieta un laiks, kad var iepazīties ar būvniecības ieceres dokumentāciju: Mārupes būvvalde, no 15.06.2020 līdz 10.07.2020
Būvniecības ieceres prezentācijas pasākuma norises vieta un laiks: Mārupes novada domes vestibils, Daugavas 29, 29.06.2020 plkst. 18:00
Atsauksmju iesniegšanas termiņš un laiks: Mārupes būvvalde, marupe.bv@marupe.lv, telefons 67149863, termiņš no 15.06.2020 līdz 10.07.2020
Informācija par būvniecības ierosinātāju: SIA “CSE COE”, Elizabetes 22-30, Rīga, LV1050, reģ.nr. 40103995402, kontakttālrunis 29420273
Informācija par būvprojekta izstrādātāju: SIA “OPEN Arhitektūra un dizains”, Ūnijas iela 8 K-2, Rīga, Latvija, LV 1084, reģ.nr. 40003831902, kontakttālrunis 26409479
Apbūvējamā zemesgabala izmantošana atbilstoši pašvaldības teritorijas plānojumam
Uz zemes gabala (Pededzes 1A, Mārupe) ir plānotas divas vienstāvu ēkas: kafejnīca un plašizklaides ēka- jaunbūves. Saskaņā ar Būvju klasifikācijas noteikumiem kafejnīcas ēkas paredzētais lietošanas veids ir 12110103 un plašizklaides ēkas paredzētais lietošanas veids ir 1261. Ēkas ir II grupas būvobjekts. Saskaņā ar spēkā esošajiem Teritorijas izmantošanas un apbūves noteikumiem, zemesgabals atrodas savrupmājas apbūves teritorijā (DZS), kurai atļautā izmantošana kā papildizmantošana (saskaņā ar 289.punktu) var būt vietējās nozīmes tirdzniecības un pakalpojumu objekti, kā arī plašizklaides objekti.
Apbūves laukuma kopējā platība 482,2 m 2 . Apbūves blīvums 19,44% aprēķināts un pieļauts saskaņā ar Mārupes novada būvvaldes 2020.gada 2.marta vēstuli Nr. 2/8/7, ar kuru tiek atļauts projektēšanā piemērot paredzētajos teritorijas plānojuma grozījumos - "Mārupes novada Teritorijas plānojuma 2014.-2026.gadam grozījumi, Redakcija 2.1. "- ietvertās prasības.
Teritorijas labiekārtojuma risinājumi
Būvprojekta ietvaros tiks izstrādāts labiekārtojuma plāns atbilstoši ēku funkcijai – stāvlaukums, piebraucamais ceļš un gājēju pieeja, kā arī publiski pieejams bērnu rotaļu laukums un riteņu novietne.
Lai jaunbūvei nodrošinātu nepieciešamo vides pieejamību, no ielas puses un autostāvvietas paredzētas virsmas slīpuma uzbrauktuves. Iekštelpu kārtojums paredzēts vienā augstuma līmenī bez sliekšņiem. Tiks izveidots sanmezgls cilvēkiem ar kustību traucējumiem, tādējādi izpildot LBN 208-15 "Publiskas būves" 59. punktu, kas nosaka: “Publiskā būvē ierīko vismaz vienu tualetes telpu, kas ir pieejama ratiņkrēslu lietotājiem, ja būvē ir nodrošināta piekļuve tai no jebkuras vietas (telpas, stāva)”.
Starp ēku un elektrolīnijas aizsargjoslu tiks izveidots nobraucamais ceļš un cieta seguma stāvlaukums ar 11 auto novietnēm un 1 novietni, kas piemērota cilvēkiem ar kustību traucējumiem, tādējādi nodrošinot minimālo auto stāvvietu skaitu pamatojoties uz Mārupes novada Apbūves un teritorijas izmantošanas saistošajiem noteikumiem, kas publiskām ēkām nosaka, ka uz katriem 4 strādājošiem jāparedz 1 autostāvvietu vai uz katriem platības 30m² 1 autostāvvietu. Auto stāvvieta tiek atdalīta no pārējās teritorijas ar blīvu koku apstādījumu.
Auto stāvvietu izvietojumu nosaka Aizsargjoslu likums (45. pants, 1. punkts, 3. apakšpunkts), kas paredz, ka aizsargjoslās gar elektriskajiem tīkliem, izņemot aizsargjoslas gar elektrisko tīklu gaisvadu līnijām ar nominālo spriegumu līdz 20 kilovoltiem, aizliegts ierīkot sporta laukumus, rotaļu laukumus, stadionus, tirgus, sabiedriskā transporta pieturas, mašīnu un mehānismu stāvvietas, kā arī veikt jebkādus pasākumus, kas saistīti ar cilvēku pulcēšanos.
Žogs nav paredzēts.
Atkritumu konteineru novietne Atkritumu konteinerus paredzēts novietot ēkas dienvidu daļā zem nojumes. Skat. GP-1 apzīmējums “2”, ievērojot attālumus no kaimiņu zemesgabala.
Ēkas būvkonstrukcijas tiks precizētas izstrādājot būvprojektu. Ēka paredzēta koka karkasa, vieglas konstrukcijas celtne. Fasādes paredzētas apšūt daļēji ar vertikālu dēļu apšuvumu un metāla loksnēm. Tiks pielietoti lentveida pamati.
Apkurei paredzēts pieslēgties centrāliem gāzes tīkliem.
Ūdensapgādei un kanalizācijai paredzēts pieslēgties centrāliem ūdens un kanalizācijas tīkliem.
Elektroapgādei paredzēts pieslēgties centrāliem elektroapgādes tīkliem.
Ugunsdrošībai projekts tiks izstrādāts atbilstoši esošajiem būvnormatīviem, ievērojot ugunsdrošības un sprādziendrošības pasākumus, nodrošinot ēkas noturību un drošību celtniecības un ekspluatācijas laikā. Ugunsdrošības kategorija U3 saskaņā ar LBN 201-15.
Plānotās būves iespējamais izvietojums un ārējais veidols
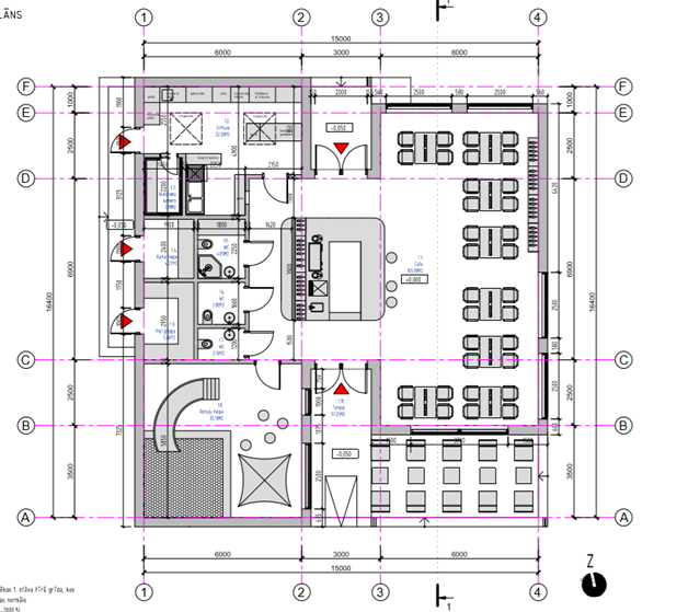
KAFEJNĪCAS PLĀNS

KAFEJNĪCAS FASĀDES


PLAŠIZKLAIDES ĒKAS PLĀNS

PLAŠIZKLAIDES ĒKAS FASĀDES


VIZUALIZĀCIJAS



